SARMEOLA: PORZIONE DI BIFAMILIARE DA RISTRUTTURARE
Rif.O093 | 100 mq | camere: 1 | bagni: 2 | € 135.000
Descrizione
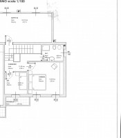
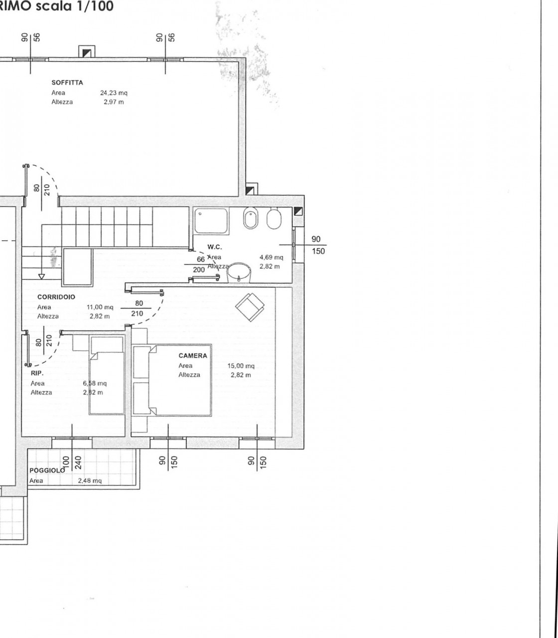
Sarmeola di Rubano: porzione di bifamiliare da ristrutturare di circa 97 mq. calpestabili abitativi con altri 30 mq. di zona servizio e garage.
Ottima soluzione per chi cerca un immobile indipendente con uno spazio esterno e la possibilità di personalizzare ambienti e finiture.
Attualmente si compone da :
- piano terra con ampio ingresso, soggiorno, cucina separata di mq. 20, un ripostiglio, zona servizio con w.c. e garage da creare;
- piano primo al quale si accede con bellissima scala in legno perfetta, una camera matrimoniale, un bagno finestrato e la possibilità di creare una seconda cameretta.
I lavori di ristrutturazione comprendono l'impianto di riscaldamento (tubazioni e allacciamento), impianto elettrico e idraulico, due bagni, infissi, cancello carraio e pedonale.
Giardino privato di circa 170 mq.
L'accesso sarà indipendente e senza promiscuità.
La posizione e la vista sono di assoluta tranquillità, lontano dal traffico senza rinunciare alla vicinanza ai servizi.
Si allegano le planimetrie di un eventuale progetto di realizzazione. Disponibili anche le planimetrie che definiscono lo stato attuale.
E' in vendita anche la porzione a fianco, cosa aspetti ? Contattaci !!
La nostra Agenzia vi accompagnerà dalla valutazione della vostra attuale residenza all'acquisto della nuova casa, mettendo come priorità le vostre esigenze e il vostro progetto immobiliare. A disposizione dei nostri clienti offriamo preventivi gratuiti da esperti creditizi o da tecnici e esperti in edilizia così da rendere questo progetto il più semplice e tranquillo possibile.
Ogni vostra necessità sarà la nostra priorità!
Dettagli
| Anno di costruzione: | 1960 |
| Prezzo: | € 135.000 |
| Esposizione: | nord, ovest, est |
| Metri quadri: | 100 mq |
| bagni: | 2 |
| camere: | 1 |
| Classe energetica: |
I.P.E. 176,58 kWh/m2 anno |
| garage: | 1 |
| numero accessi carrai: | 1 |
| numero portoni: | 1 |
| ripostigli: | 1 |
| terrazzi: | 1 |
| totale piani: | 2 |
Ambienti: | |
Comfort: | |
Livelli: | |
| Comune: | Rubano |
| Indirizzo: | Via Moiacche |
| Data inserimento: | |
| Data ultima modifica: | |










